Từ xưa đến nay, chúng ta đã quá quen thuộc với những ngôi nhà cấp 4 mộc mạc, đơn sơ vùng nội thành và nông thôn của Việt Nam. Nó như một nét đặc
trưng của vùng nông thôn, mặc dù xã hội có thay đổi, phát triển, mẫu nhà cấp 4 này vẫn giữ được những nét riêng vốn có và có những nét cải tiến mới hơn. Tại bài viết này, chúng ta cùng tìm hiểu thiết kế kiến trúc nhà cấp 4 đẹp.
Một thực tế thấy rằng các bản vẽ kiến trúc nhà cấp 4 đẹp không có quá nhiều như những mẫu nhà phố hay nhà biệt thự. Bởi vì tính khả dụng của những mẫu nhà cấp 4 không quá cao. Để vẽ ra được một mẫu thiết kế nhà cấp 4 với các kiến trúc sư thì không quá khó nhưng để khách hàng mua những bản vẽ đó mới là điều khó.
Chính vì vậy mà mẫu thiết kế nhà cấp 4 thường ít hơn rất nhiều so với mẫu thiết kế nhà phố, nhà vườn và biệt thự….Chúng tôi hiểu điều này, và hiểu rằng có rất nhiều khách hàng cần những bản vẽ chi tiết thiết kế kiến trúc nhà cấp 4 để tham khảo. Chúng tôi đã rất cẩn thận, tỉ mỉ để mang đến cho khách hàng những bản thiết kế
Bản vẽ thiết kế kiến trúc nhà cấp 4 đẹp số 1
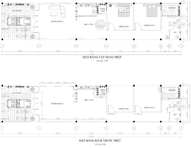
Đây là mẫu thiết kế nhà cấp 4 đẹp xây dựng trên diện tích đất 10.1 x 21.9 mét. Mô hình xây được chia tách một cách hợp lý, có khu vực nghỉ ngơi, không gian nhà bếp kết hợp phòng ăn.

Hiện trạng đất xây dựng

Bản vẽ mặt đứng 1-7

Bản vẽ mặt cắt A-A

Bản vẽ mặt bằng

Mặt bằng mái
Thiết kế kiến trúc nhà cấp 4 khá đơn giản, tùy vào mơ ước của mỗi người mà ngôi nhà sẽ thiết kế khác nhau. Đơn giản hay độc đáo khác biệt cũng tạo nên cho ngôi nhà một nét đẹp riêng. Nếu có điều kiện bạn có thể thuê một kiến trúc sư để thiết kế kiến trúc cho ngôi nhà của mình hoặc bạn cũng có thể tự sáng tạo hay nghĩ ra các ý tưởng nói thông tin ý tưởng đó cho các nhà thiết kế để họ có thể tư vấn và vẽ ra bản thiết kế kiến trúc nhà cấp 4 để xây dựng.
Những ngôi nhà đẹp hiện đại với mái thái sang trọng sẽ là xu thế mới ở vùng ngoại thành và nông thôn ngày nay. Sự kết hợp khéo léo giữa phòng khách, phòng ngủ, phòng nấu ăn, cộng thêm khoảng sân rộng và vườn cây rợp bóng lá sẽ tạo nên một bức tranh tuyệt đẹp.
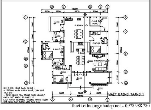
Bản vẽ thiết kế kiến trúc nhà cấp 4 đẹp số 2
Chi tiết về bản vẽ căn nhà cấp 4 này với tổng diện tích mặt bằng 20×25, trong khi đó diện tích đất xây dựng là 12.9×13 mét rất phù hợp ở những vùng nông thôn sở hữu tích diện tích đất rộng rãi.

Mặt bằng tổng thể

Bản vẽ mặt cắt A-A

Bản vẽ mặt bằng bên và mặt bằng chính

Mặt bằng bố trí phòng

Bản vẽ mặt bằng mái
Thiết kế kiến trúc nhà cấp 4 sao cho hợp lý?
Thiết kế kiến trúc nhà cấp 4 thường sẽ được xây ở những nơi có vùng đất rộng, diện tích thoải mái để tạo nên một không gian sân, nhà, vườn. Như vậy sẽ mang lại một tổng thể hoàn hảo nhất cho ngôi nhà. Ngoài ra tạo nên những điểm nhấn riêng, nét độc đáo cho ngôi nhà.

Cách thiết kế một căn nhà cấp 4 phù hợp với nhu cầu sử dụng và kinh tế.
Đối với thiết kế nhà cấp 4, thường mỗi phòng ngủ đều có ít nhất 1 cửa sổ, 1 cửa phòng đảm bảo được ánh sáng và không khí cho căn phòng, không gây cảm giác bí bách, tăm tối cho căn phòng tạo một không gian tràn đầy năng lượng.
Khi thiết kế kiến trúc nhà cấp 4 phòng bếp được bố trí khá đơn giản với bếp hình chữ I được xếp sát tường, phù hợp với diện tích căn phòng. Cách sắp xếp như vậy giúp không gian sinh hoạt chung này thêm phần thoải mái cho cả gia đình. Bếp có 1 cửa phụ, giúp thông thoáng khí, đem lại vẻ sáng sủa cho căn bếp.
Hy vọng với những gợi ý của chúng tôi các bạn sẽ có những ý tưởng mới để thiết kế nhà cấp 4 cho ngôi nhà tương lai của mình. Nếu các bạn có nhu cầu thiết kế cho gia đình mình một mẫu bản vẽ nhà cấp 4 ưng ý nhất xin vui lòng liên hệ với chúng tôi, chắc chắn sẽ khiến quý khách hàng hài lòng bởi những dịch vụ đặc biệt. Phương châm làm việc “khách hàng là ông chủ duy nhất”, chắc chắn sẽ có những bản thiết kế kiến trúc nhà cấp 4 đẹp khiến các bạn hài lòng.
Nguồn tin: https://thietkethicongnhadep.net/
Mời quý đọc giả cùng xem thêm:


































