Mẫu biệt thự cổ điển 3 tầng là một trong những sự lựa chọn của những ai có điều kiện kinh tế vững chắc mà lại có niềm đam mê đặc biệt với phong cách kiến trúc Hoàng gia cổ điển. Một mẫu biệt thự cổ điển 3 tầng đẹp khi nó mang trong mình sự kết hợp hài hòa giữa các yếu tố đường nét, màu sắc, công năng sử dụng…
Dưới đây là gợi ý mẫu thiết kế biệt thự cổ điển 3 tầng đẹp, độc mà xaydungso.vn muốn giới thiệu đến quý nhà đầu tư. Mong rằng, với mẫu biệt thự cổ điển 3 tầng này sẽ giúp bổ sung thêm vào ý tưởng cho công trình biệt thự tương lai của mình nhé.
1. Phối cảnh 3D chi tiết cho mẫu biệt thự đẹp cổ điển 3 tầng
Với những mẫu biệt thự cổ điển 3 tầng sẽ là một yêu cầu khá cao đối với kiến trúc sư và đội ngũ thiết kế. Bởi mẫu kiến trúc này không chỉ yêu cầu phải là những người có kinh nghiệm trong thiết kế dạng biệt thự, lâu đài lại phải là những người có gu thẩm mĩ tinh tế và vốn hiểu biết về văn hóa sâu rộng.

Căn biệt thự cổ điển 3 tầng này gây ấn tượng với người nhìn trước hết bởi không gian mặt tiền. Mặt tiền của căn biệt thự đã tạo cho người ta cảm giác về sự sang trọng, đẹp mắt khi lần đầu được chứng kiến. Các nhà thiết kế đã tính toán để thiết kế mặt tiền vừa phù hợp với ngoại thất công trình lại vừa hài hòa với công năng sử dụng. Màu vàng là tone màu chỉ đạo của sảnh tầng 1. Đây là màu sắc thể hiện sự quyền quý, cao sang. Cầu thang lên sảnh chính và sảnh phụ cũng được thiết kế khá cao. Nó mang đến cho căn biệt thự sự bề thế và vững chãi cho tổng thể công trình.

Hệ thống cột trụ to, vững chắc được thiết kế và phân bổ đồng đều từ phía sảnh chính cho đến sảnh phụ, lại được trang trí bằng những đường nét hoa văn tinh tế đẹp mắt, nhẹ nhàng và mềm mại cũng tạo điểm nhấn cho căn biệt thự. Sự kết hợp hài hòa giữa hai thái cực mạnh mẽ và mềm mại đã tạo nên sự kiên cố, sang trọng nhưng lại rất nhẹ nhàng, thanh thoát cho căn biệt thự cổ điển này. Đồng thời nó thu hút ánh nhìn từ lần đầu tiên chứng kiến.
Hơn nữa, căn biệt thự cổ điển 3 tầng này còn gây ấn tượng bởi sự kết hợp hài hòa giữa màu sắc của phong cách cổ điển với hiện đại. Gam màu chủ đạo cua công trình là gam màu trắng- gam màu của sự tinh khiết, sang trọng và quý phái. Nó được kết hợp với màu vàng ở sảnh tầng 1 và màu đen của hệ thống khung cửa cùng hệ mái tạo nên sức hút đặc biệt của công trình biệt thự cổ điển này.

Hệ cửa của căn biệt thự cũng là yếu tố phát huy tối đa thế mạnh thẩm mĩ của ngôi biệt thự. Toàn bộ cửa trong căn biệt thự này đều được thiết kế dạng khung vòm màu đen và sử dụng kính cường lực sang trọng. Nó vừa mang đến sự quyền quý, lại cách âm, cách nhiệt và mang đến bầu không khí thoáng đãng cho các phòng chức năng trong ngôi nhà.
Không phải công trình lâu đài, biệt thự cổ điển nào cũng được thiết kế hệ cửa sổ phụ, được bố trí hợp lý trong khắp công trình để đón những luồng khí tươi mát tươi mát trong thiên nhiên và trong ngôi nhà của mình.

Căn biệt thự là sự kết hợp hài hòa và độc đáo giữa không gian kiến trúc và không gian xanh. Hồ bơi rộng là điểm nhấn cho không gian xanh ấy. Hồ bơi được xây dựng trên một diện tích không quá rộng, đủ cho nhu cầu thư giãn và vận động của các thành viên trong gia đình. Kiến trúc hồ bơi được thiết kế uốn lượn, xung quanh hồ được trang trí bằng những đường nét họa tiết hoa văn tinh xảo, mềm mại. Bên cạnh hồ bơi là một chòi nghỉ nhỏ có mái che. Nơi đây là nơi bạn nghỉ ngơi, thư giãn, thưởng trà và thả mình vào không gian cây xanh tươi mát.
Thiết kế cảnh quan sân vườn cũng rất được chú ý. Bên cạnh những thảm cỏ Nhật xanh mát ở phía chân của tường rào và cạnh đường đi là những cây xanh phong thủy được đặt ở những vị trí mang đến may mắn cho gia chủ. Ngoài ra, ở phía trên chòi nghỉ là giàn hoa tigon, vừa tô điểm cho không gian sân vườn lại điều hòa nhiệt độ ở khu vực chòi nghỉ ngơi. Sự kết hợp của hệ thống cửa kính với khuôn viên sân vườn nhiều cây xanh đã mang đến không gian sống hòa hợp với thiên nhiên, tạo cảm giác thư thái, bình an.

Hệ mái của công trình kiến trúc này là mái dốc vừa mềm mại, thanh thoát lại vừa khỏe khoắn, kết hợp với kiến trúc cổ điển đã mang đến vẻ đẹp tổng hòa của mẫu thiết kế công trình biệt thự này.
Hệ thống tường rào của căn biệt thự với nhiệm vụ mang đến sự an toàn cho cuộc sống của gia chủ và các thành viên trong gia đình. Hệ thống tường rào là sự kết hợp giữa hai màu đen và trắng được làm bằng sắt ống an toàn, với những đường nét hoa văn tinh tế, đồng nhất. Cổng chính được thiết kế với 2 cánh mở rộng và cổng phụ cũng được làm từ nguyên liệu sắt mĩ nghệ được sơn màu đen huyền bí, sang trọng cùng với những đường nét hoa văn được thiết kế cầu kì lại càng tôn lên đẳng cấp của căn biệt thự cũng như của gia chủ.
2. Mặt bằng công năng biệt thự cổ điển 3 tầng đẹp
Thiết kế biệt thự 3 tầng cổ điển là sự kết hợp giữa gu thẩm mĩ tinh tế và kinh nghiệm lâu năm trong nghề. Thiết kế mặt bằng công năng dành cho biệt thự 3 tầng này vừa phải gọn gàng, rộng rãi mà vẫn đảm bảo phù hợp với nhu cầu sinh hoạt của các thành viên trong gia đình. Ngoài ra, nó vẫn phải đảm bảo yếu tố phong thủy để mang đến may mắn cho gia chủ và các thành viên trong gia đình.
2.1. Mặt bằng tầng trệt

Bước vào không gian tầng 1, bạn sẽ có cảm giác như đang khám phá không gian lâu đài cổ vậy. Tầng trệt của căn biệt thự được thiết kế bao gồm phòng khách ngăn cách với khu vực bếp nấu với phòng ăn bằng chiếc kệ trang trí kết hợp để tivi. Điểm đặc biệt của căn bếp ở căn biệt thự này đó là được thiết kế cửa đi từ phía sảnh phụ vào để thuận tiện cho hoạt động nấu nướng hàng ngày. Phía bên trái của phòng khách là gara oto. Một phòng ngủ được giấu phía sau cầu thang với nhà vệ sinh khép kín để mang đến sự riêng tư cho người dùng. Một nhà vệ sinh cung cũng được thiết kế khá kín, đảm bảo sự sang trọng cho không gian.
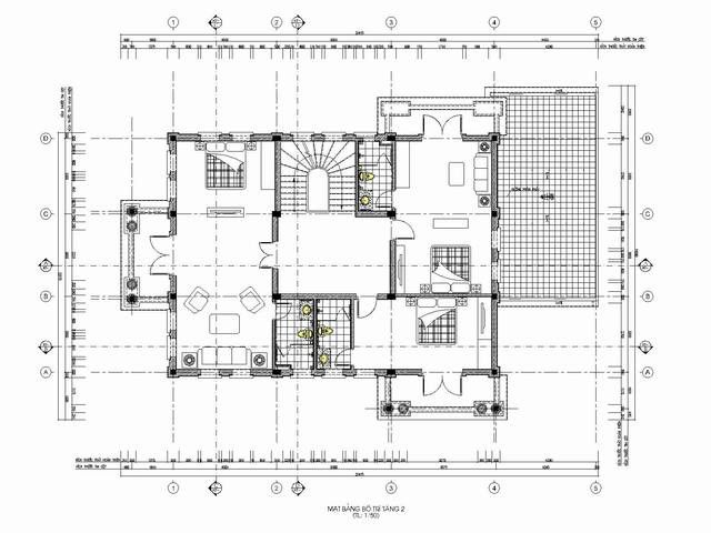
2.2. Thiết kế mặt bằng tầng 2

Thiết kế mặt bằng tầng 2 bao gồm 1 phòng ngủ master, 2 phòng ngủ dành cho con, 1 phòng sinh hoạt chung, 1 phòng sách và 1 nhà vệ sinh chung. Đi từ phía dưới câu thang lên bạn sẽ bắp gặp không gian phòng sinh hoạt chung với những món đồ nội thất mang đậm phong cách cổ điển. Phòng ngủ lớn được thiết kế với nhà vệ sinh kép kín để mang lại không gian sinh hoạt riêng tư.
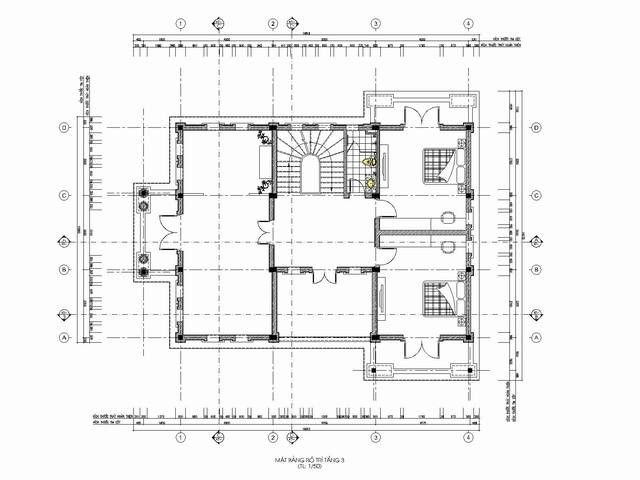
2.3. Thiết kế mặt bằng tầng 3

Mặt bằng tầng 3 được thiết kế bao gồm phòng thờ, phòng , thể thao, khu giặt đồ phơi đồ, nhà kho sân thượng dành cho việc trồng hoa, cây cảnh và bộ bàn ghế để thư giãn.
3. Thiết kế nội thất biệt thự 3 tầng cổ điển
Trang trí nội thất là một trong những yêu cầu quan trọng, nó góp phần mang đến vẻ đẹp hoàn hảo cho tổng thể căn biệt thự. Gam màu xám được dùng làm chủ đạo cho toàn bộ không gian. Tất cả những món đồ nội thất như rèm cửa, màu sơn tường, thảm trải sàn đều cùng màu với nhau… sẽ mang đến cho gia chủ cảm giác nhẹ nhàng, có những giờ phút nghỉ ngơi thư thái.

Nội thất phòng khách không thể thiếu đi phào chỉ ốp chân tường và gân trần, kết hợp với cách bài trí salon và ghế sofa kiểu dạng cổ điển và sàn gỗ màu nâu trầm. Tất cả đều toát lên sự sang trọng, lịch lãm mà không kém phần ấm cúng và tiện nghi. Những món đồ nội thất đều sử dụng chất liệu gỗ, thủy tinh để tạo ra cảm giác đài các, diễm lệ, quyền quý cho không gian.

Phòng bếp của căn biệt thự là sự kết hợp giữa cổ điển và hiện đại. Phần tường bếp dùng gạch mosaic màu vàng để ốp, mang lại vẻ xa hoa, tráng lệ. Tủ bếp thông minh, hiện đại với màu nâu vân gỗ, đồng nhất với gân trần tạo nên sự hài hòa, thống nhất trong không gian.

Không gian phòng ngủ mang đậm phong cách cổ điển truyền thống. Rèm cửa, ga, gối đều đồng màu với màu sắc chủ đạo của tổng thể ngôi nhà. Cửa sổ rộng với làm bằng kính giúp tận dụng tối đa ánh sang tự nhiên và mang đến sự thông thoáng cho căn phòng, tạo cảm giác thư thái cho những giờ phút nghỉ ngơi. Hệ thống nội thất thông minh như tủ âm tường, phòng thay đồ… giúp tận dụng tối đa không gian.
Mẫu biệt thự cổ điển 3 tầng mang đến cho bạn và các thành viên trong gia đình một cuộc sống tiện nghi, thoải mái và xa hoa. Bạn cũng hoàn toàn có thể sở hữu căn biệt thự với phong cách như trên. Nếu có như cầu hãy liên hệ ngay với xaydungso.vn để được tư vấn nhé.


































