Mẫu nhà 3 tầng lợp mái tôn giúp các chủ đầu tư tiết kiệm được khá nhiều chi phí xây dựng, vẫn đảm bảo vẻ đẹp thẩm mĩ... Nên trong thời gian qua mái tôn vẫn là sự lựa chọn của rất nhiều chủ đầu tư cho không gian sống 3 tầng của gia đình mình. Hiểu được điều này bài viết của chúng tôi hôm nay giúp các chủ đầu tư có được những mẫu nhà 3 tầng lợp mái tôn tiết kiệm chi phí một cách tối ưu nhất cho công trình xây dựng của bạn.
Hình ảnh 3D mẫu nhà 3 tầng lợp mái tôn đẹp, tiết kiệm chi phí
Chắc chắn khi quyết định lựa chọn một căn nhà mái tôn bạn cần phải xem xét kĩ lưỡng, bởi mái nhà cũng chính là yếu tố quyết định đến việc bảo vệ toàn bộ căn nhà, bảo vệ cuộc sống của các thành viên trong gia đình, là yếu tố không thể thiếu trong mỗi không gian. Mái tôn từ xưa đến nay luôn được biết đến là một loại mái giúp tiết kiệm chi phí và mang lại một vẻ đẹp riêng. Nếu tài chính của gia đình không nhiều thì đây cũng là một sự lựa chọn để chúng ta tham khảo.
Trong phần này chúng ta cùng tìm hiểu những lí do gì khiến mẫu nhà 3 tầng đẹp lợp mái tôn được ưa chuộng qua những hình ảnh 3D mẫu nhà 3 tầng lợp mái tôn như sau:

Thứ nhất những ngôi nhà lợp mái tôn có độ bền cũng tương đối cao, để đảm bảo chất lượng tôn, độ bền lớn thì buộc phải bắm chặt lấy phương pháp và kỹ thuật thi công một cách đảm bảo. Ngày nay có rất nhiều chủ đầu tư lựa chọn hệ mái tôn cách nhiệt chất lượng rất tốt, thực hiện thi công đúng kỹ thuật làm mái tôn, kết hợp cùng bộ khung xà gồ chắc chắn thì nếu lựa chọn mái tôn cho căn nhà 3 tầng thì thời gian sử dụng trung bình cũng đạt từ 30-50 năm.

Thứ 2 là mang đến tính thẩm mỹ cho căn nhà 3 tầng. Những ngôi nhà 3 tầng khi lựa chọn phong cách hiện đại lại thường sử dụng tôn cách nhiệt.Tuy nhiên với sự đa dạng về mẫu mã các loại hình tôn như hiện nay các chủ đầu tư có thể thoải mái lựa chọn cho căn nhà 3 tầng của gia đình mình, chẳng khác gì một căn nhà mái ngói khi bạn lựa chọn dạng tôn sóng ngói . Vì vậy có thể thấy những căn nhà 3 tầng mái tôn hiện nay rất đa dạng về hình thức và đảm bảo tính thẩm mỹ cao.

Thứ 3 là khả năng cách nhiệt, cách âm của mái tôn cũng rất tốt. Đặc biệt là hệ mái tôn cách âm, cách nhiệt được ứng dụng để phục vụ khả năng chống nóng, chống ồn của ngôi nhà khiến căn nhà hoàn toàn mát mẻ vào mùa hè và ấm áp vào mùa đông. Khi lựa chọn mái tôn cách nhiệt cho căn nhà 3 tầng thì bạn có thể thêm trần nhà hoặc không vì chức năng chống nóng ở mái tôn đã được tích hợp toàn diện. Ngoài chức năng cách nhiệt thì mái tôn hiện nay còn có mái tôn chống ồn rất tốt.

Thứ 4 là chi phí lợp mái tôn cho nhà 3 tầng tiết kiệm hơn mái ngói rất nhiều, phù hợp với tài chính của nhiều chủ đầu tư hơn. Với đặc điểm của mái tôn khi xây dựng cho nhà 3 tầng là có đặc điểm nhẹ, kết cấu tấm tôn rời, bạn chỉ cần hệ thống khung đơn giản đảm bảo kĩ thuật là có thể dễ dàng thi công, thời gian thi công cũng nhanh chóng. Chính vì thế giá thành lợp mái tôn cho căn nhà 3 tầng thường rẻ hơn đến 20 – 30% chi phí so với lợp mái ngói. Khi xây dựng nhà 3 tầng mái tôn thì bạn cũng có thể dễ dàng tính toán được chi phí thi công mái nhà một cách tương đối chính xác với chi phí thực, hạn chế một cách tối đa nhất những chi phí phát sinh.

Thứ 5 là sự tiện lợi khi thi công, lắp đặt mái tôn cho nhà 3 tầng là điều mà chúng ta không thể phủ nhận. Nếu như mái ngói có trọng lượng khá lớn cùng hệ thống khung nên trong quá trình lắp đặt sẽ tốn nhiều thời gian và công sức hơn so với việc bạn lựa chọn hệ mái tôn cho căn nhà 3 tầng. Tuy nhiên mái tôn lại khắc phục được hoàn toàn những điều đó khi trong thành phố đông đúc, những ngôi nhà có địa thế hiểm trở thì việc vận chuyển vật liệu nhanh chóng, tiết kiệm, dễ dàng thi công cũng là tiêu chí rất đáng quan tâm của các chủ đầu tư.

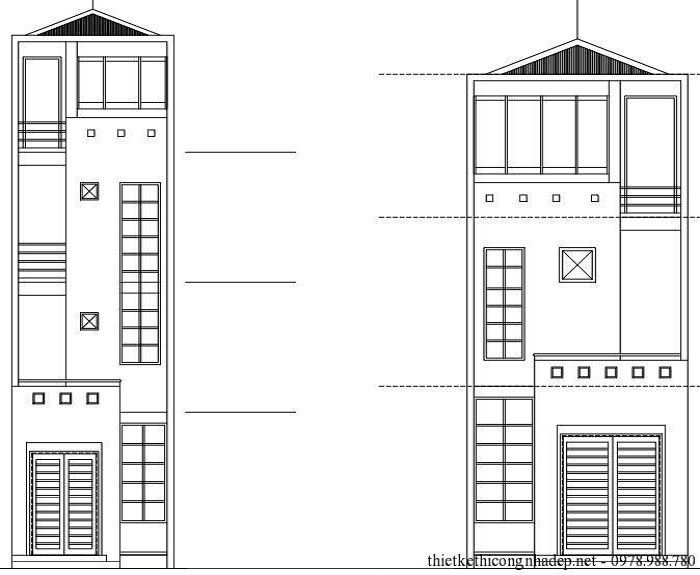
Phối cảnh bản vẽ mẫu nhà 3 tầng mái tôn nhỏ gọn, thanh lịch
Khi có ý định xây dựng căn nhà 3 tầng mái tôn thì điều bạn cần chuẩn bị trước tiên đó là bản vẽ thiết kế dành cho ngôi nhà 3 tầng trước. Việc sở hữu một bản vẽ thiết kế cho căn nhà 3 tầng mái tôn đóng vai trò rất quan trọng và cần thiết, nó giúp bạn có một định hướng cụ thể cho nhà thầu tiến hành thi công đảm bảo đúng như mong muốn của bạn, đồng thời khi chuẩn bị được trước bản vẽ thiết kế còn khiến bạn có một căn cứ để theo sát nhà thầu xem có thi công đúng như bản vẽ hay không.

Bạn có thể tiết kiệm chi phí bằng cách lựa chọn mẫu thiết kế trên đây của chúng tôi. Tuy nhiên mỗi lô đất sẽ có diện tích khác nhau, mong muốn của mỗi gia đình về số phòng chức năng, đặc biệt là số phòng ngủ là khác nhau nên bạn chỉ có thể dựa vào mẫu thiết kế trên đây và thay đổi sao cho phù hợp với diện tích khu đất và nhu cầu sử dụng của gia đình bạn là hoàn toàn hợp lý. Nếu chủ đầu tư nào cẩn trọng, kỹ lưỡng hơn thì có thể thuê kiến trúc sư tư vấn lên ý tưởng cho căn nhà 3 tầng của gia đình mình rồi sau đó mới tiến hành thi công.

Nếu tự chọn mẫu thiết kế bạn có thể tiết kiệm được một khoản chi phí như hồ sơ, bản vẽ thiết kế. Tuy nhiên xây dựng nhà 3 tầng là một công trình khá lớn bạn cần phải nghiên cứu thật kĩ lưỡng có sự bàn bạc với gia đình trước khi đưa ra quyết định là tự thiết kế hay thuê kiến trúc sư thiết kế. Hãy suy nghĩ thật kĩ để đảm bảo rằng trong quá trình xây dựng căn nhà 3 tầng lợp mái tôn sẽ không mắc phải bất cứ sai lầm nào và khi công trình xây dựng nhà 3 tầng được hoàn thiện vừa đảm bảo được tính thẩm mĩ mà vẫn có thể đáp ứng được công năng sử dụng một cách tối đa nhất.
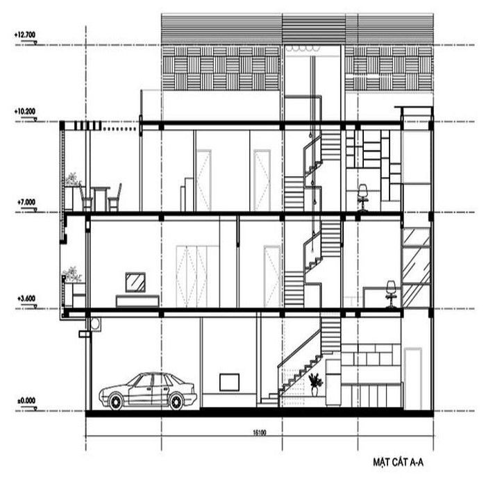
Mặt bằng tổng thể nội thất nhà 3 tầng mái tôn.
Những mẫu nhà 3 tầng được xem là một trong những mẫu nhà có nhiều ưu điểm và được lựa chọn nhiều nhất trong thời gian gần đây, những mẫu nhà 3 tầng mái tôn nó giúp các chủ đầu tư tiết kiệm được khá nhiều chi phí xây dựng giúp cuộc sống gia đình bạn trở nên tiện nghi, hiện đại. Với chi phí xây dựng nhà 3 tầng mái tôn không quá cao nên đây được xem là lí do vì sao trong thời gian gần đây những mẫu nhà 3 tầng mọc lên như nấm ở khắp các tỉnh thành trên cả nước.

Để xây dựng được một ngôi nhà 3 tầng trên đây chúng ta thấy rằng không những tiết kiệm được chi phí mà diện tích để xây dựng một căn nhà 3 tầng cũng không cần quá nhiều, chỉ với một lô đất tương đối là bạn hoàn toàn có thể sở hữu được một ngôi nhà vừa đẹp mắt và vừa đảm bảo được tính công năng sử dụng thoải mái đáp ứng được hầu hết nhu cầu sử dụng của hầu hết gia đình Việt.

Khi sở hữu một ngôi nhà 3 tầng mái tôn này chắc chắn một điều rằng bạn có thể dễ dàng được trải nghiệm một không gian sống với đầy đủ công năng thoải mái ở mỗi tầng. Với diện tích 3 tầng này bạn có thể tận dụng một cách triệt toàn bộ diện tích có trong căn nhà. Tuy nhiên khi thiết kế bạn vẫn phải đảm bảo tính thẩm mĩ và sự kết hợp hài hòa trong khuôn viên ngôi nhà 3 tầng của gia đình bạn. Hãy có những quyết định sang suốt khi xây dựng nhà cho gia đình bạn nhé!
Sàn giao dịch thương mại điện tử Xây Dựng Số

Việc lựa chọn được một nhà thầu xây dựng uy tín, chất lượng là niềm mong mỏi của bất cứ gia đình nào. Hiện nay trên thị trường xây dựng có muôn vàn kiểu nhà thầu xây dựng lớn nhỏ. Điều quan trọng là bạn phải có sự tinh tế, lựa chọn được một nhà thầu thực sự chất lượng.
Sàn giao dịch thương mại điện tử Xây Dựng Số sẽ giúp bạn có được những ý tưởng tuyệt vời với bộ sưu tập những mẫu nhà 3 tầng mới nhất năm 2021, hệ thống nhà thầu chuyên nghiệp có đầy đủ hồ sơ năng lực công ty, giúp bạn thi công công trình nhà ở 3 tầng một cách tiết kiệm nhất, đảm bảo công năng sử dụng và chức năng thẩm mĩ với những cam kết đầy đủ có trong bản hợp đồng.


































