Mẫu biệt thự 4 tầng 5 phòng ngủ được rất nhiều gia chủ quan tâm trong thời gian gần đây bởi đáp ứng nhu cầu của chính gia chủ sở hữu về mặt công năng lại vừa đáp ứng được nhu cầu thẩm mỹ mà gia chủ mong muốn. Mẫu biệt thự 4 tầng 5 phòng ngủ đang được nhiều gia chủ quan tâm hiện nay sẽ được giới thiệu trong bài viết dưới đây.
Mặt bằng thiết kế mẫu biệt thự 4 tầng 5 phòng ngủ bố trí không gian như thế nào?

Với mặt bằng không gian tầng 1 dành cho mẫu biệt thự 4 tầng 5 phòng ngủ được bố trí với một diện tích sân trước đủ lớn để trẻ con trong gia đình có đủ khoảng không gian vui chơi ngay trong chính ngôi nhà của mình, còn người lớn thì có không gian để hoạt động thể thao khi cần thiết tại gia mà không cần phải đi đâu xa, vô cùng thuận tiện. Trong khoảng sân này gia chủ hoàn toàn để được phương tiện cá nhân của mình, nhất là ô tô của mình tại chính ngôi nhà của mình, không phải tìm một địa điểm xa nhà hay mất thêm chi phí cho việc này và bạn yên tâm rằng dù có để oto trong nhà thì vẫn có đủ không gian vui chơi cho trẻ nhỏ.
Tiến vào khu vực sinh hoạt của mẫu biệt thự 4 tầng 5 phòng ngủ bắt đầu từ hệ bậc tam cấp rồi đến cửa 4 cánh cỡ lớn. Sau cửa 4 cánh ấy là phòng khách của gia đình. Từ phòng khách nối thông ra khu vực bàn ăn để tạo thành một không gian rộng để gia chủ có thể tiếp đón vị khách đến chơi nhà và ở lại dùng bữa với gia chủ. Không gian bếp được đặt cuối nhà, không gây ám mùi lên các không gian phía trên. Nhà vệ sinh, phòng ngủ nhỏ được đặt dọc theo khu vực bàn ăn của gia đình. Trong không gian mặt bằng tầng 1 của mẫu biệt thự 4 tầng 5 phòng ngủ này sẽ có một không gian rộng lớn là phòng tập Yoga để đáp ứng nhu cầu thể dục thể thao của gia chủ sở hữu.

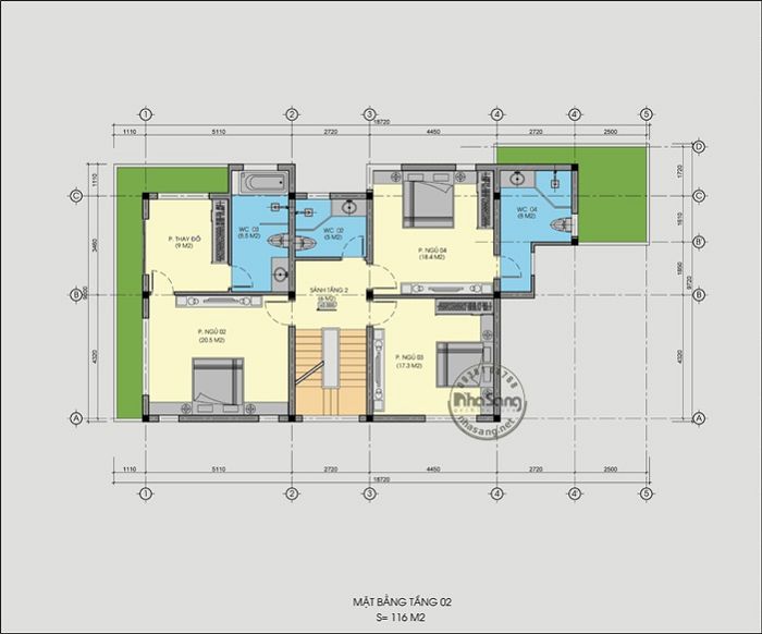
Mặt bằng tầng 2 của mẫu biệt thự 4 tầng 5 phòng ngủ được bố trí với 3 phòng ngủ trong đó có 2 phòng ngủ có nhà vệ sinh bên trong để bản thân những người sở hữu có được một không gian riêng tư. Còn lại 1 phòng ngủ sử dụng một nhà vệ sinh chung bên ngoài được bố trí tại mặt bằng tầng 2.

Mặt bằng tầng 3 của mẫu biệt thự 4 tầng 5 phòng ngủ bao gồm: phòng thờ, khu vực phơi đồ và giặt đồ của gia chủ và khoảng sân chơi để đáp ứng nhu cầu của gia đình.
Cuối cùng là mặt bằng tầng 4 của mẫu biệt thự 4 tầng 5 phòng ngủ sẽ được bố trí theo nhu cầu, thông thường hiện nay sẽ một là thiết kế tầng tum hoặc thiết kế tầng mái phù hợp với phong cách tân cổ điển và cổ điển.
Nội thất sử dụng cho không gian ngủ của mẫu biệt thự 4 tầng 5 phòng ngủ hiện nay
Có thể thấy khi xây một căn nhà thì nội thất luôn là vấn đề được chúng ta quan tâm hàng đầu. Bởi ngôi nhà bề ngoài có đẹp đến bao nhiêu mà nội thất xấu thì coi như đã mất một nửa thành công trong xây dựng. Điều đó để thấy rằng trong xây dựng nhà biệt thự, nội thất luôn được quan tâm hằng đầu.

Gợi ý lựa chọn nội thất cho mẫu biệt thự 4 tầng 5 phòng ngủ với không gian ngủ sử dụng phong cách tân cổ điển đầy sang trọng. Trong không gian này tone màu trắng, kem được sử dụng cùng với màu nâu từ nội thất mang đến cảm giác nhẹ nhàng, sang trọng, đầy tinh tế.

Một không gian ngủ khác dành cho mẫu biệt thự 4 tầng 5 phòng ngủ sử dụng phong cách thiết kế hiện đại, trẻ trung cho gia chủ lựa chọn. Không gian gây chú ý với phần tường giả bê tông đầy mạnh mẽ, với thiết bị nội thất nhỏ xinh nhưng nhiều tác dụng, phục vụ tối đa nhu cầu của gia chủ sử dụng. Trong không gian này gia chủ hạn chế tối đa các thiết bị điện tử để bản thân có được một không gian nghỉ ngơi yên tĩnh nhất. Việc lựa chọn ánh sáng vàng, đồ nội thất có sắc trầm cho không gian mang đến cảm nhận độ ấm áp.

Thêm một gợi ý về không gian ngủ cho mẫu biệt thự 4 tầng 5 phòng ngủ lựa chọn phong cách tân cổ điển. Với không gian này màu trắng bao phủ kết hợp với ánh đèn vàng cùng với màu nâu từ sàn gỗ đã đủ làm nên không gian ấm cúng, giúp người sử dụng dễ dàng chìm vào giấc ngủ. Nội thất: gường, tủ để đầu giường, bộ bàn ghế nhỏ, bàn trnag điểm và tủ quần áo.
Siêu đẹp, siêu sang dành cho mặt tiền mẫu biệt thự 4 tầng 5 phòng ngủ

Phối cảnh mặt tiền đầu tiên dành cho mẫu biệt thự 4 tầng 5 phòng ngủ áp dụng phong cách kiến trúc tân cổ điển mang đến cho gia chủ sở hữu sự sang trọng pha nét hiện đại trong cuộc sống đương đại ngày nay.
Bao quanh mặt tiền tầng 1 là hệ thống cổng rào vô cùng chắc chắn. Phần cổng rào nào không xây kín bằng gạch mà đan xen hệ khung sắt chắc chắn hay những bức tường với đường chỉ phào với những bức phù điêu được rát vàng sang trọng. Việc thiết kế như thế này mang đến một không gian thông thoáng, giúp công trình không gò bó, bí bách.
Mặt tiền các tầng 2,3 có thiết kế tương tự nhau với hệ thống cửa kính 4 cánh tương ứng với không gian phòng bên trong và hướng ra ban công. Lên đến khu vực tầng 4 sẽ được bố trí với một bên là cửa vòm kết hợp với mái ngói cổ điển – là không gian sinh hoạt của gia chủ và phần còn lại là vườn mini với phần mái hệ khung sắt cùng kính cường lực. Với không gian này thường được gia chủ lựa chọn một bộ bàn trà nhỏ xinh với hoa văn theo hướng cổ điển, màu trắng, xung quanh là cây xanh được bố trí xung quanh. Không gian này trở nên vô cùng thư giãn và thoải mái để gia chủ tận hưởng ly trà nóng sau ngày làm việc mệt mỏi.

Thêm một mẫu biệt thự 4 tầng 5 phòng ngủ theo phong cách tân cổ điển nữa để gia chủ tham khảo. Mặt tiền tầng 1 bao gồm: Hệ thống cổng rào và khu vực tầng 1 của biệt thự. Cả hai đều gây ấn tượng mạnh với việc sử dụng đá granit hoa cương ốp mang đến ấn tượng về màu sắc đồng thời giúp công trình trở nên kiên cố, vững chãi trước tác động từ môi trường. Phần mặt tiền tầng 1 không bị che lấp bởi cổng rào bởi kiến trúc sư sử dụng hệ thống bậc tam cấp cao, bên dưới bố trí hệ thống tầng hầm để phương tiện cá nhân của gia chủ ngay trong chính ngôi nhà của mình.
Lên đến tầng 2, 3, 4 sử dụng tone màu trắng mang đến sự hài hòa cho tổng thể mẫu biệt thự 4 tầng 5 phòng ngủ. Phần mặt tiền của tầng này chia làm 3 không gian: khu vực chính giữa với hệ thống cột trụ tròn cùng mái vòm kiến trúc mái bên trên. Phía bên trái là là ban công tương ứng với không gian bên trong công trình và phần còn lại hệ thống cửa sổ.
Phần mái sử dụng hệ vi kèo mái ngói màu xám phù hợp tổng thể và giúp cho công trình bền bỉ hơn với điều kieenh thời tiết tại Việt Nam.

Một mẫu biệt thự 4 tầng 5 phòng ngủ sử dụng phong cách cổ điển là mẫu phối cảnh mặt tiền tiếp theo được giới thiệu trong bài viết này. Mẫu thiết kế này tạo ngay ấn tượng bởi thiết kế to lớn, đồ sộ, gây choáng ngợp cho người đối diện khi đi ngang qua công trình này.
Cả công trình sử dụng tone màu trắng trang nhã kết hợp cùng vật liệu bằng sắt cho cánh cổng hay lan can ban công các tầng, hay khung cửa bằng sắt sơn đen tĩnh điện vô cùng nổi bật, tạo cảm giác về sự mạnh mẽ. Điểm đáng chú ý ở mẫu thiết kế này nằm ở khu vực tầng 4 với thiết kế tum ấn tượng. Không gian này được thiết kế mới những mái lam che nắng, phàn nào đó để lượng nhiệt vào trong không gian này không quá lớn và giúp gia chủ có được không gian thoáng mát nhất để thư giãn.

Gia chủ xem thêm mẫu biệt thự 4 tầng 5 phòng ngủ tại website: xaydungso.vn để có cho mình nhiều lựa chọn cho công trình tương lai. Với sự am hiểu khách hàng cần gì trong lĩnh vực xây dựng hiện nay, chúng tôi cung cấp đầy đủ thông tin liên quan đến vấn đề xây dựng đến với khách hàng đang có nhu cầu xây dựng tại Việt Nam. Xây dựng số cam kết về chất lượng nhà thầu, đơn vị thiết kế, giá cả hợp lý nhất đến tay gia chủ tương lai. Đội ngũ tư vấn 24/24 giải đáp mọi thắc mắc của gia chủ để gia chủ có thể sớm sở hữu một mẫu biệt thự 4 tầng 5 phòng ngủ phù hợp nhất.


































