Bạn đang băn khoăn rằng với một lô đất có diện tích là 7x16m có xây dựng được một căn biệt thự hay không? Hay biệt thự chỉ là những tòa lâu đài, dinh thự đồ sộ. Điều này không hẳn có rất nhiều căn biệt thự mini đang làm say đắm biết bao chủ đầu tư. Để giúp các chủ đầu tư hiểu rõ hơn về mẫu biệt thự 7x16m, chúng ta cùng tham khảo bài viết của chúng tôi ngay sau đây nhé.
Hình ảnh 3D mẫu biệt thự 7x16m nhẹ nhàng, thanh lịch

Những căn biệt thự mái lệch xuất hiện ngày càng nhiều ở nước ta. Với kiểu dáng, mới lạ, độc đáo thu hút mọi ánh nhìn, chỉ với diện tích 7x16m nhưng bạn hoàn toàn có thể sở hữu căn biệt thự mái lệch 2 tầng này. Nếu như ở khu vực tầng 1 các kiến trúc sư đã cố tình thiết kế bằng một sự kín đáo, an toàn về mặt an ninh thì trên tầng 2 của căn nhà biệt thự được thiết kế với ô cửa sổ 4 cánh được mở toang đón toàn bộ ánh sáng, không khí trong lành từ thiên nhiên vào căn phòng.

Tại sao nói căn biệt thự có màu sắc cổ điển bởi chúng ta nhận thấy phần lan can sắt tĩnh điện uốn lượn thường thấy trong trang trí của những ngôi nhà cổ điển, sự kết hợp của màu trắng và màu vàng đồng chúng ta cũng thường thấy ở những căn biệt thự cổ điển. Nhưng ngoài 2 yếu tố đó thì mọi thứ trong căn biệt thự này lại mang đậm màu sắc hiện đại. Hai yếu tố này kết hợp với nhau tạo nên một tổng thể hài hòa, đặc sắc.
Chắc chắn rằng nếu bạn là một người yêu thiên nhiên, yêu những nét đẹp của làng quê Việt Nam thì khoảng sân vườn của mẫu nhà này chính là dành cho bạn. Sở hữu những vẻ đẹp mộc mạc mà nên thơ nhất từ cây chuối, cây bưởi, vườn rau,… tất cả sẽ tạo nên một tổng thể hoàn mỹ nhất. Vào cuối ngày làm việc được cùng gia đình chăm sóc chúng thì thật sự tuyệt vời với những phút giây hạnh phúc.

Căn biệt thự trên đây nếu đặt ở một lô đất 2 mặt tiền có diện tích 7x16m thì có lẽ không có tác phẩm nào phù hợp hơn. Từng góc cạnh, kiểu dáng, màu sắc đều toát lên nét thẩm mỹ cao, chắc chắn chỉ cần đi ngang qua thôi mẫu biệt thự này đã làm say đắm không biết bao nhiêu người. Ngôi biệt thự còn nổi bật hơn nữa dưới ánh điện về đêm.

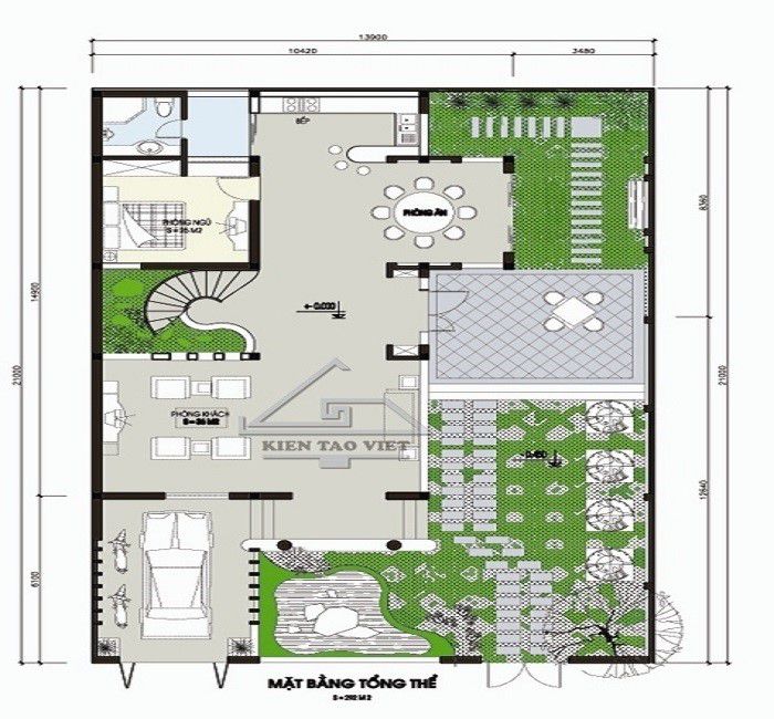
Mặt bằng tổng thể nội thất căn biệt thự 7x16m nhẹ nhàng, thanh lịch

Mặt bằng tổng thể là bản vẽ hình chiếu mặt bằng của các công trình trên khu đất xây dựng mà cụ thể trong phạm vi bài viết này là mặt bằng tổng thể nội thất của căn biệt thự 7x16m. Nó thể hiện vị trí các công trình với hộ thống đường xá, cây xanh, mặt bằng chức năng… Các kỹ sư xây dựng dựa vào mặt bằng tổng thể này để từ đó có thể lên kết cấu và sắp xếp bố trí công năng sử dụng thiết kế phù hợp với không gian của công trình xây dựng.

Có rất nhiều chủ đầu tư sẽ cảm thấy mơ hồ khi nhắc đến khái niệm mặt bằng tổng thể nội thất. Mặt bằng tổng thể ở đây có nghĩa là các công trình xây dựng từ nhà ở bình thường đến các căn, biệt thự, khách sạn hay còn bao gồm cả các dự án xây dựng công cộng,… tất cả các công trình xây dựng đó thì đều cần có mặt bằng tổng thể và mặt bằng tổng thể này có công dụng lớn cho quá trình thi công.

Cụ thể hơn mặt bằng là hình chiếu của ngôi nhà lên mặt phẳng nằm ngang. Khi nhìn vào mặt bằng này thì có nghĩa tương ứng với góc nhìn được xem là từ trần nhà nhìn xuống phía dưới mặt bằng của tầng trệt. Không gian mặt bằng bao quát toàn bộ căn biệt thự 7x16m, từ đó cho chúng ta biết được kích thước một cách khái quát đến cụ thể và cả cách bố trí nội thất cho từng phòng chức năng từ đó các chủ đầu tư cũng có thể quan sát xem có phù hợp với cách bố trí của gia đình mình hay không. Tùy thuộc vào từng căn biệt thự, mỗi phong cách sẽ có cách bày trí và thiết kế khác nhau ở từng mặt bằng.

Khái niệm mặt đứng là được hiểu là hình chiếu vuông góc của ngôi nhà lên mặt phẳng đứng. Cũng tùy thuộc vào từng mẫu thiết kế biệt thự khác nhau mà từ đó sẽ có nhiều bản vẽ mặt đứng khác nhau, và mặt đứng được biểu diễn bằng các nét liền mảnh và với mặt đứng thì sẽ không hiển thị được cụ thể các phần khuất bên trong của căn biệt thự.

Ý nghĩa của mặt cắt thì được xem là bản vẽ phần nhìn thấy sau khi đã cắt một không gian theo chiều thẳng đứng. Để dễ hiểu chúng ta hãy thử tưởng tượng ý nghĩa của mặt cắt cũn giống như việc ta thực hiện cắt một chiếc bánh kem chúng ta sẽ khám phá được bên trong chiếc bánh thì lúc này quay trở lại ý nghĩa của mặt cắt sẽ cho chúng ta thấy được cấu tạo, kích thước của sàn mái, cầu thang, của các phòng chức năng,…hay nói một cách cụ thể là thấy được các lớp bên trong bản thiết kế.
Phối cảnh bản vẽ biệt thự 7x16m hiện đại thanh lịch

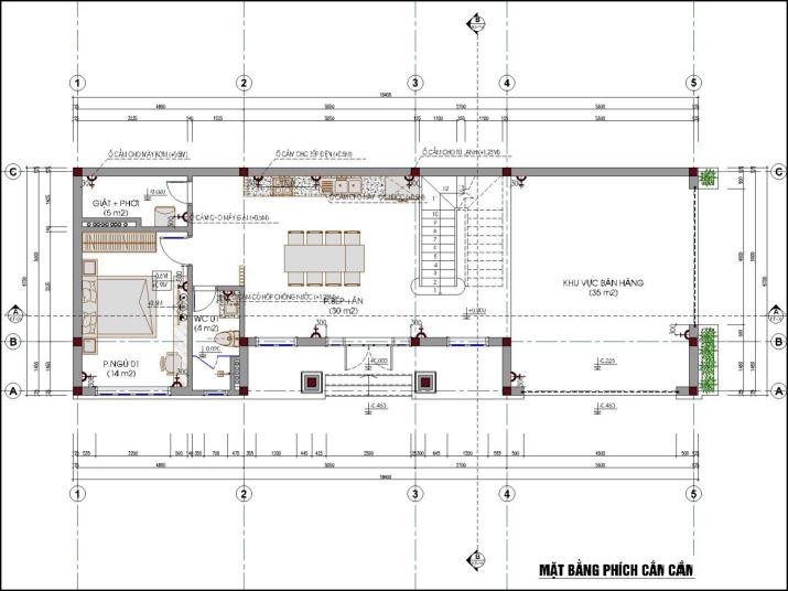
Chúng ta cùng tìm hiểu chi tiết căn biệt thự thông qua các bản thiết kế. Ở bản thiết kế này chúng ta nhận thấy rằng mặt bằng tầng 1 của căn biệt thự 7x16m đã phát huy tối đa công năng sử dụng, mang tính hợp lý cao. Và giường như các căn biệt thự dù theo kiểu dáng, kích thước, vị trí các phòng có khác nhau nhưng về cơ bản công năng sử dụng cũng được bố trí với những các phòng chức năng cơ bản như: 1 phòng khách ở vị trí đầu tiên sau sảnh là không thể thiếu đối với bất kì căn biệt thự, hay căn nhà nào, qua phòng khách là chúng ta vẫn đến với một không gian sinh hoạt chung đó là phòng bếp và phòng ăn. Ngoài ra nếu như ở tầng 1 chỉ có không gian sinh hoạt chung thì có lẽ hơi lãng phí về mặt diện tích nên tại tầng 1 được thiết kế kêm 1 phòng ngủ, 1 nhà vệ sinh chung và 1 gara ô tô tiện lợi.

Ở bản vẽ trên đây thì còn được cụ thể đến từng chi tiết không chỉ cụ thể ở diện tích mỗi phòng mà còn cụ thể cả việc vị trí nào nên để ổ cắm điện là thuận tiện. Nhưng ở bản thiết kế này có điểm khác biệt đó là mẫu biệt thự 7x16m này còn có thể phục vụ cho cả hoạt động kinh doanh. Điều mà gần như căn nhà phố nào cũng cần đến. Phía trước mặt bằng tầng 1 là khoảng diện tích để bạn có thể phục vụ bất cứ lĩnh vực, buôn bán hay lĩnh vực kinh doanh nào đều rất hợp lý.
Sàn giao dịch thương mại điện tử Xây Dựng Số
Đã có muôn vàn câu hỏi đặt ra khi chuẩn bị tiến hành thi công một công trình lớn đó là xây dựng biệt thự 7x16m như làm sao lựa chọn được một nhà thầu uy tín, một kiến trúc sư giỏi? Liệu lựa chọn nhà thầu thông qua Xây Dựng Số có an toàn, tin cậy hay không? Cũng dễ hiểu vì đó là tâm lý chung của tất cả các chủ đầu tư khi chuẩn bị bước vào công việc được xem là quan trọng nhất của cuộc đời mỗi con người.

Nhưng để các chủ đầu tư có thể đặt niềm tin tuyệt đối vào Xây Dựng Số chúng tôi có thể khẳng định sự tin cậy bằng những lí do cụ thể như sau: Lí do thứ nhất là những nhà thầu mà Xây Dựng Số cung cấp đến khách hàng đều có hồ sơ năng lực minh bạch rõ ràng trình đến các chủ đầu tư. Hệ thống nhà thầu đa dạng, có mặt ở khắp các tỉnh thành trên cả nước.

Lí do thứ 2 là khi lựa chọn những nhà thầu của Xây Dựng Số sẽ giúp bạn tiết kiệm được một cách tối đa chi phí xây dựng, đặc biệt càng những công trình lớn như xây dựng biệt thự thì lại càng tiết kiệm được nhiều chi phí. Các Công ty Xây dựng tại Xây Dựng Số thì báo giá với các giải pháp kết cấu khác nhau, với mức giá cơ bản, không phát sinh trong quá trình xây dựng giúp chủ đầu tư tiết kiệm hàng chục triệu đến hàng trăm triệu đồng.
Lí do thứ 3 là các nhà thầu được đánh giá liên tục hàng năm thông qua đội ngũ chuyên gia hàng đầu của Xây Dựng Số và đồng thời để công tâm nhất thì các nhà thầu còn được đánh giá bởi chính các chủ đầu tư đã từng hợp tác với các nhà thầu. Lí do thứ 4 là bắt nhịp kịp thời với cách mạng Công nghiệp 4.0 khi lựa chọn những nhà thầu của chúng tôi giúp các chủ đầu tư không chỉ tiết kiệm chi phí, hợp đồng đúng tiến độ mà còn rất phù hợp nhất với xu thế của cách mạng công nghiệp 4.0 là các lợi ích và cũng chính là những lí do thuyết phục khi bạn đặt niềm tin tuyệt đối vào Xây Dựng Số.


































