Cha ông ta xưa nay có câu rằng “Tậu trâu – lấy vợ - làm nhà” cả ba công việc này là công việc quan trọng nhất của cuộc đời mỗi con người. Trong đó xây dựng nhà cửa là cả một quá trình tất cả các thành viên trong gia đình cố gắng để có được một không gian sống khang trang, tiện nghi. Xây dựng biệt thự đang là nhu cầu rất lớn của các chủ đầu tư, hiểu được điều này bài viết của chúng tôi hôm nay giúp các chủ đầu tư có được những mẫu biệt thự 9x20m với vẻ đẹp đến từ sự hiện đại tự nhiên.
Hình ảnh 3D mẫu biệt thự 9x20 với vẻ đẹp đến từ sự hiện đại
Những mẫu biệt thự sang trọng, hiện đại và thu hút luôn là ước mơ của mỗi chúng ta khi chuẩn bị xây dựng cho gia đình. Nhắc đến biệt thự dẫu biết rằng chi phí bỏ ra không phải là rẻ nhưng vì những ưu điểm quá lớn của nó khiến ta luôn phải mong ước cả 1 đời. Trong phần này chúng tôi sẽ giới thiệu đến các bạn hình ảnh 3D những mẫu biệt thự đẹp với diện tích 9x20m hiện nay trên thị trường xây dựng.

Phong cách biệt thự tân cổ điển vẫn giữ nguyên những gam màu đặc trưng, với những đường nét, hoa văn đậm chất của một lối kiến trúc cổ xưa nhưng để lại dư âm trong lòng các chủ đầu tư bằng sự trẻ trung, cá tính của phong cách hiện đại. Với mặt tiền 9m chiều rộng và 20m chiều dài bạn hoàn toàn có thể sở hữu mẫu biệt thự mang phong cách tân cổ điển trên đây của chúng tôi. Ở phong cách này hạn chế ở mức tối ưu nhất sự hoa mỹ của phong cách cổ điển giống như cột Doric, Lonic hoặc cột Corinth mà ở phong cách tân cổ điển này sử dụng với hệ thống lan can sắt, các khung cửa sổ lớn với mục đích tạo ra sự thông thoáng, đưa nguồn ánh sáng của thiên nhiên vào căn nhà tạo nên sự thư thái, trong lành.

Biệt thự mái thái cũng đang là một trong những mẫu thiết kế rất được quan tâm trong thời gian gần đây.Chẳng phải ngẫu nhiên mẫu thiết kế này lại nhận được nhiều sự quan tâm đến vậy. Minh chứng cho điều này đó chính là căn biệt thự 9x20m trên đây của chúng tôi. Ngôi nhà mang đến một vẻ đẹp vừa có sự cầu kì chỉnh chu, tỉ mỉ trên từng đường phào chỉ nhưng lại không quá điêu luyện giống như phong cách cổ điển mà hoàn toàn toát lên một vẻ đẹp đậm chất hiện đại. Đó là những gì mà căn biệt thự mái thái mang đến cho chúng ta chiêm nghiệm về sự sáng tạo không ngừng của một thị trường kiến trúc Việt Nam đang trên đà phát triển.

Hoàn thiện cho một bộ sưu tập những căn biệt thự 9x20m đẹp nhất hiện nay với đầy đủ phong cách thì có lẽ bạn không thể bỏ qua sự hiện đại, mới lạ, phá cách đến từ căn biệt thự mái lệch. Sự sáng tạo được bắt nguồn từ toàn bộ cấu trúc của ngôi nhà. Bắt gặp ngay đầu tiên đó là bộ cổng, tường bao quanh kín đáo, an toàn. Bên trong là một không gian lộng lẫy, tiện nghi. Tuy nhiên nếu lựa chọn phong cách tân cổ điển thì bạn nên chú ý một điều rằng phần mái của ngôi nhà mái lệch thường thiên về một phía nên dễ xảy ra hiện tượng sụt lún nếu bạn làm móng nhà qua loa không chắc chắn. Nếu lựa chọn phong cách này tốt hơn hết bạn nên lựa chọn hệ móng băng 2 phương để đảm bảo một sự an toàn tuyệt đối.
Phối cảnh bản vẽ mẫu biệt thự 9x20m mang đến vẻ đẹp hiện đại, tự nhiên.

Với bản vẽ trên đây của chúng tôi thì không hẳn chúng tôi khuyên bạn làm giống y hệt mẫu thiết kế trên đây mà bạn có thể lấy đó là ý tưởng thiết kế cho căn biệt thự của gia đình mình. Bởi lẽ mỗi gia đình có số lượng thành viên là khác nhau, lựa chọn bao nhiêu phòng ngủ là phù hợp thì mỗi gia đình lại có cách lựa chọn khác nhau. Chính vì vậy bản thiết kế mà chúng tôi cung cấp bạn có thể tham khảo. Từ đó bạn hãy nếu chính những ý tưởng có được của mình cho một người kiến trúc sư tài năng mà bạn tin tưởng để họ có thể giúp bạn hoàn thiện ý tưởng ấy một cách trọn vẹn nhất.

Cuối cùng từ bản vẽ hoàn chỉnh ấy bạn sẽ gửi gắm ước mơ của gia đình mình cho một nhà thầu uy tín họ sẽ xây dựng ngôi biệt thự theo đúng như mong ước của bạn qua bản thiết kế chi tiết ấy. Cũng nhờ bản thiết kế này mà người giám sát công trình có thể làm căn cứ để theo dõi xem liệu phía nhà thầu có làm sai với mẫu bản thiết kế đó hay không để kịp thời đưa ra hướng giải quyết sớm nhất.
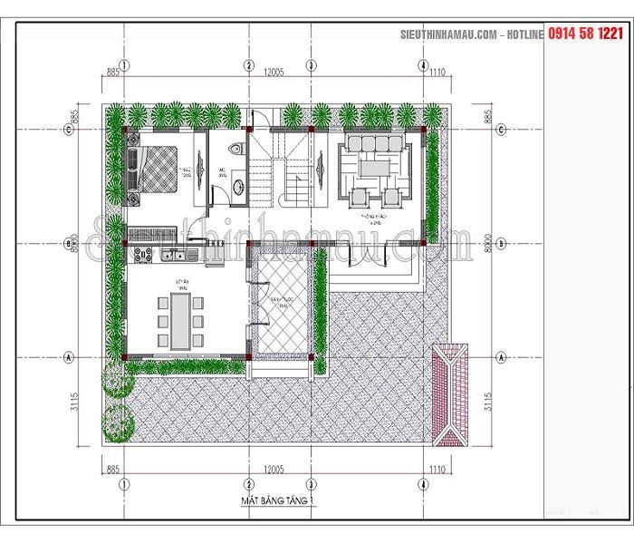
Mặt bằng tổng thể nội thất mẫu biệt thự 9x20m đẹp nhất năm 2021
Quy luật hài hòa chính là sự đồng nhất tạo nên sự liên kết giữa các yếu tố cho toàn thể mặt bằng nội thất có trong căn biệt thự có một diện mạo bắt mắt. Để làm được điều này đòi hỏi bạn phải tạo ra được một thể cân bằng phù hợp của tất cả các yếu tố nhằm tạo nên 1 tổng thể dễ chịu. Hài hòa nội thất có nghĩa là dựa trên một tập hợp các yếu tố tạo nên một tổng thể hài hòa gồm có: Hình dáng, màu sắc, vật liệu, cách tổ chức, kiểu dáng. Thiết kế nội thất theo quy luật hài hòa có nghĩa là khi tất cả các thành phần của không gian nội thất đều chứa một sức hút lạ kì gây sự chú ý cho người nhìn.

Bố cục nội thất có sự hài hòa khi các đồ vật chính trong căn phòng từ phòng khách, phòng bếp đến phòng ngủ chúng có sự tương đồng về màu sắc là hợp lý nhất. Nội thất trong các căn phòng cần có một sự kết nối liên tục, liền mạch không có gì phá cách, vượt quá tỉ lệ thông thường cho phép. Mọi thứ trong căn phòng nên để chúng có cùng một tone màu, từ đó sẽ tạo ra một không gian nội thất có sự đồng nhất về tỷ lệ. Đây chính là điều mà ai trong chúng ta khi tạo mặt bằng thiết kế nội thất cũng sẽ quan tâm đến để tạo ra một không gian hài hòa.

Một không gian được coi là đúng với quy luật hài hòa là phải tạo ra được tạo một cách sắp đặt đồ nội thất trong không gian nhà một cách phù hợp, ngăn nắp gọn gàng, diện tích các sản phẩm nội thất phải phù hợp với diện tích của căn phòng.
Để làm được điều này bạn có thể thực hành bằng cách đó là chọn trước một đối tượng nội thất chính làm trung tâm rồi từ đó lấy chính đối tượng này rồi chọn lựa đối tượng khác tươnng đồng về tính chất với nó chắc chắn với quy luật này bạn sẽ sở hữu được một không gian như ý.

Sàn giao dịch thương mại điện tử Xây Dựng Số
Không phải ngẫu nhiên mà tổng giám đốc Đoàn Hồng Tâm một vị lãnh đạo của một công ty lớn TD Group đã khẳng định rằng “tôi đã nhận tổng cộng 6 công trình nhờ sàn giao dịch thương mại điện tử Xây Dựng Số. Hồ sơ năng lực của công ty đã được đánh giá kịp thời và xác đáng”. Hay một nhận định khác của giám đốc chuỗi khách sạn Hoàng Hà cũng không tiếc lời khen ngợi khi ông cho rằng “Tôi đã tiết kiệm được 500 triệu khi xây khách sạn 3 sao ở sàn Xây Dựng Số nhờ Công ty Bidenco đã báo giá và đưa ra giải pháp kết cấu tối ưu nhất”.

Nói như vậy để chúng tôi khẳng định sự thương hiệu nổi tiếng của sàn trong nhiều năm qua đã và đang là cầu nối tin tưởng giữa các chủ đầu tư với các nhà thầu uy tín trên cả nước. Bởi tất cả những nhà thầu lớn, nổi tiếng đều nằm trong hệ thống nhà thầu của Xây Dựng Số. Khi đến với sàn bạn sẽ nhận được sự tư vấn nhiệt tình miễn phí, từ đó bạn đã có ý định về sự lựa chọn của mình.

Toàn bộ những nhà thầu của xây dựng số đề xây dựng với phương châm tạo dựng uy tín, chất lượng, giúp các chủ đầu tư có một công trình xây dựng hoàn hảo, tiết kiệm chi phí một cách tối ưu nhất. Ngoài ra bạn có thể đặt niềm tin tuyệt đối vào những nhà thầu qua một bộ hồ sơ năng lực công ty đầy đủ, rõ ràng, được đánh giá năng lực qua đội ngũ chuyên gia đầy kinh nghiệm thường xuyên và liên tục... Tất cả những điều trên đã đủ sức thuyết phục cho việc bạn lựa chọn Xây Dựng Số là sự lưạ chọn đúng đắn và sáng suốt nhất.
Trên đây là những chia sẻ của chúng tôi về toàn bộ những kiến thức xây dựng xoay quanh những mẫu biệt thự 9x20m. Hi vọng với những chia sẻ chi tiết, đầy đủ này của chúng tôi sẽ giúp các chủ đầu tư có được những thông tin bổ ích phục vụ cho hoạt động xây dựng biệt thự của gia đình mình trong tương lai.



































